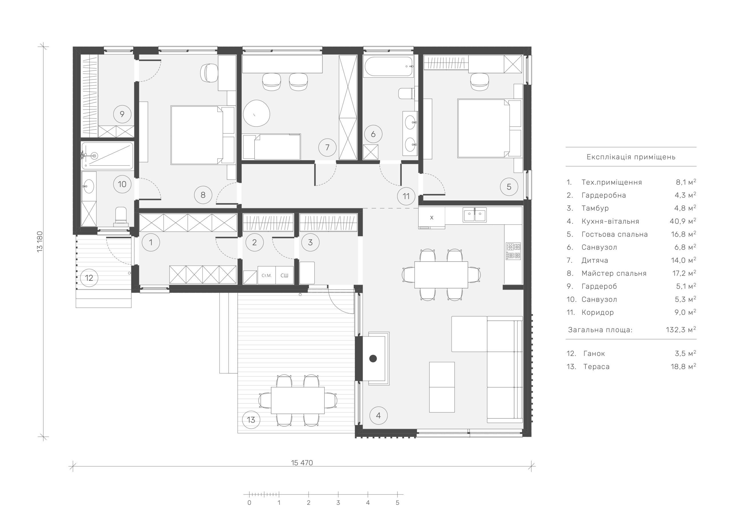
Private residential building, 132 sq.m.

Private residential building for one family. Two bedrooms, two bathrooms, a wardrobe, technical rooms and a large living room with a fireplace. The project was developed for the western regions of Ukraine, so we chose this form of roof, palette of colors and materials.

Private residential building, 132 sq.m.

Inspection of the house

The main difference of this project is an open terrace, which also serves as a porch. We decided to place the house at the back of the plot so that the main area faced the street. A shed for cars and an outbuilding were placed at the entrance, and a gazebo with a barbecue area was placed on the side. The L-shaped shape of the house creates an internal space and makes the plot more private. In the planning, we demarcated two bedroom blocks: the master block with a separate bathroom and wardrobe is separated by a technical room from the second bedroom, which can serve as a children’s room or a guest room.

Inspection of the house