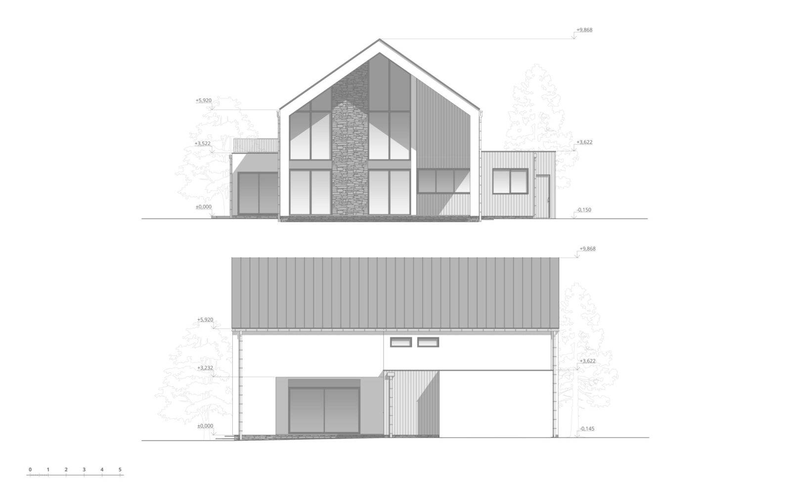
Two-story house made of SIP panels, 255 sq.m.

Spectacular house for one family. The main idea of ​​the house is that all living quarters are located on the first floor. The second floor is a guest and work area.

Two-story house made of SIP panels, 255 sq.m.

Inspection of the house

The total area of ​​the building is 255 sq.m. and 66 sq.m. terraces and a balcony. On the first floor, there is a master unit of 35 sq.m., with its own bathroom and wardrobe, a children’s bedroom of 23 sq.m., a guest bathroom of 4.8 sq.m., a kitchen with a technical room and a large living room of 44 sq.m. On the second floor, there are two guest bedrooms of 16 and 18 sq.m., a bathroom with a separate shower, a hall of 22 sq.m. with a workplace and a view of the living room and panoramic windows. A plus is the presence of a garage of 24 square meters. This house has one very distinctive feature. Although it has only two floors, the height of the house in the ridge is 9 meters. And the end wall, which opens into the garden, consists of 80% glazing, which visually removes the barrier between the house and the environment and makes the garden a natural extension of the living room. This is what a dream house looks like, if you have the opportunity to see it in person, you will see it for yourself

Inspection of the house