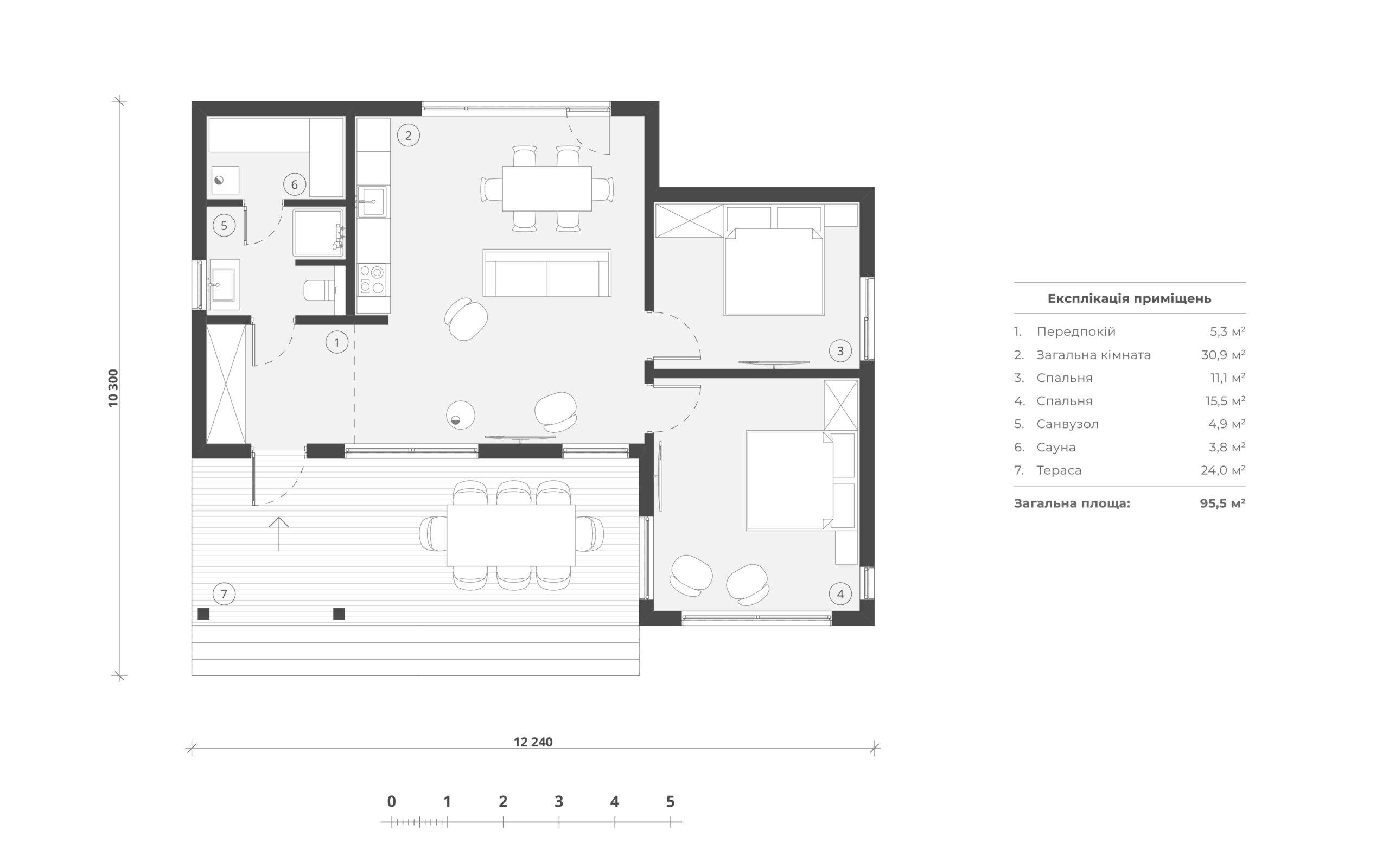
Explanation of premises:

Entrance hall – 5.3 sq.m
Kitchen-living room – 30.9 sq.m
Bedroom – 11.1 sq.m
Bedroom 2 – 15.5 sq.m
S/v – 4.9 sq.m
Steam room – 3.8 sq.m
Terrace – 24.0 sq.m

The total area of ​​the building is 95.5 square meters

Explanation of premises:

Complete set of the house:

1) Foundation:

  • pile – screw
  • multi-turn narrow-bladed screw piles, zinc anti-corrosion coating

2) Home kit:

  • binding bearing wooden beam with waterproofing
  • floor – SIP 200 mm (10 mm OSB-3, produced by EGGER, insulation by HIRSCH Porozell, Austria)
  • load-bearing walls – SIP 160 mm (10 mm OSB-3, produced by EGGER, insulation by HIRSCH Porozell, Austria)
  • partitions – SIP 120 mm (10 mm OSB-3, produced by EGGER, insulation by HIRSCH Porozell, Austria)
  • roof – SIP 200 mm (10 mm OSB-3, produced by EGGER, insulation by HIRSCH Porozell, Austria)

3) Windows and doors:

  • energy-efficient, profile – 5 cameras, double-glazed windows – 2 cameras, external lamination
  • insulated metal entrance door.

4) Roof:

  • installation of a flat roof, PVC membrane, Switzerland
  • installation of a drainage system

5) Facade decoration:

  • ventilated wooden facade
  • Spruce, Ukraine
  • tinting antiseptic for wood Tikkurila, Finland

6) Terrace (optional)

  • load-bearing wooden platform, natural terrace board (spruce) / load-bearing metal platform, terrace composite board.
Complete set of the house: