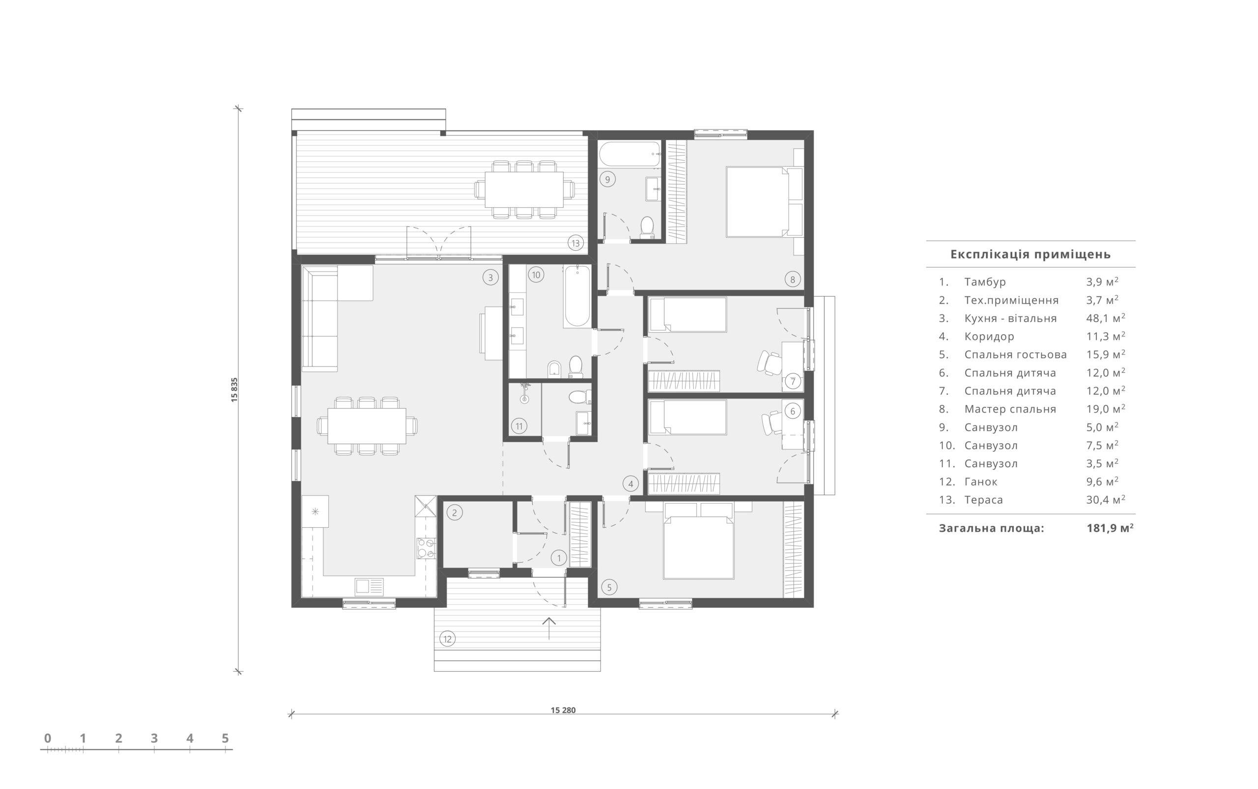
Explanation of premises:

Tambur – 3.9 sq.m
Technical premises – 3.7 sq.m
Kitchen – living room – 48.1 sq.m
Corridor – 11.3 sq.m
Guest bedroom – 15.9 sq.m
Children’s bedroom – 12.0 sq.m
Children’s bedroom – 12.0 sq.m
Master bedroom – 19.0 sq.m
Bathroom – 5.0 sq.m
Bathroom – 7.5 sq.m
Bathroom – 3.5 sq.m
Porch – 9.6 sq.m
Terrace – 30.4 sq.m

The total area of ​​the building is 181.9 square meters

Explanation of premises:

Complete set of the house:

1) Foundation:

  • reinforced concrete pile-lattice with rough insulated screed and with fixed formwork made of thermal blocks
  • basic input of communications – sewerage and electricity.

2) Home kit:

  • load-bearing walls – SIP 160 mm (10 mm OSB-3, produced by EGGER, insulation by HIRSCH Porozell, Austria)
  • partitions – SIP 120 mm (10 mm OSB-3, produced by EGGER, insulation by HIRSCH Porozell, Austria)
  • attic floor – SIP 200 mm (10 mm OSB-3, produced by EGGER, insulation by HIRSCH Porozell, Austria)
  • the roof is a rafter system, a set of structural elements and fasteners

3) Windows and doors:

  • energy-efficient, profile – 5 cameras, double-glazed windows – 2 cameras, external lamination
  • insulated metal entrance door.

4) Roof:

  • metal tile, Italy
  • installation of a drainage system, Poland
  • lining of overhangs of the roof and ceiling of the terrace – metal soffit

5) Facade decoration:

  • facade polystyrene insulation 100 mm
  • application of decorative plaster KABE, Poland
  • combination with decorative natural wood (spruce, Ukraine)

6) Terrace (optional)

  • load-bearing wooden platform, natural terrace board (spruce) / load-bearing metal platform, terrace composite board.
Complete set of the house: