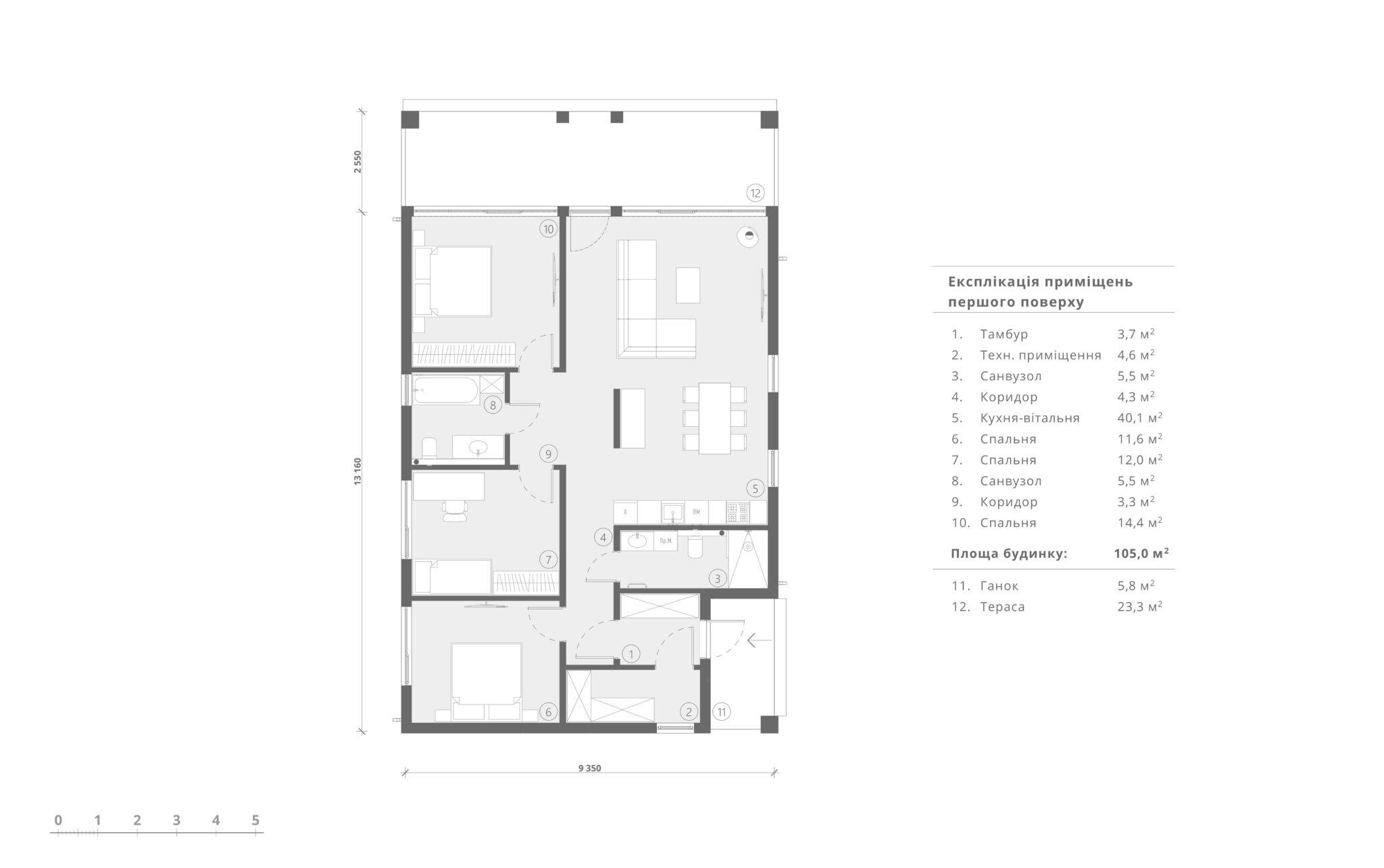
Explanation of premises:

Porch – 5.8 sq.m
Tambur – 3.7 sq.m
Technical premises – 4.6 sq.m
Kitchen – living room – 40.1 sq.m
Corridor – 4.3 sq.m
Corridor – 3.3 sq.m
Bedroom – 11.6 sq.m
Bedroom – 12 sq.m
Bathroom – 5.5 sq.m
Bathroom – 5.5 sq.m
Bedroom – 14.4 sq.m
Terrace – 23.3 sq.m

The total area of ​​the building is 134.1 square meters

Explanation of premises:

Complete set of the house:

1) Foundation:

  • reinforced concrete pile-lattice with rough insulated screed and with fixed formwork made of thermal blocks
  • basic input of communications – sewerage and electricity.

2) Home kit:

  • load-bearing walls – SIP 160 mm (10 mm OSB-3, produced by EGGER, insulation by HIRSCH Porozell, Austria)
  • partitions – SIP 120 mm (10 mm OSB-3, produced by EGGER, insulation by HIRSCH Porozell, Austria)
  • Roof – SIP 220 mm (10 mm OSB-3, produced by EGGER, insulation by HIRSCH Porozell, Austria)
  • The rafter system of the canopy of the terrace and the porch

3) Windows and doors:

  • energy-efficient, profile – 5 cameras, double-glazed windows – 2 cameras, external lamination
  • insulated metal entrance door.

4) Roof:

  • Professional flooring t-18, Arvedi Italy
  • installation of a drainage system, Poland
  • lining of the ceiling of the terrace and the porch – wooden plank

5) Facade decoration:

  • insulation mineral wool 50 mm, Professional flooring t-18, Arvedi Italy
  • insulation mineral wool 50 mm, Wooden plank

6) Terrace (optional)

  • load-bearing wooden platform, natural terrace board (spruce) / load-bearing metal platform, terrace composite board.
Complete set of the house: