Compact house made of SIP panels, 56 sq.m.

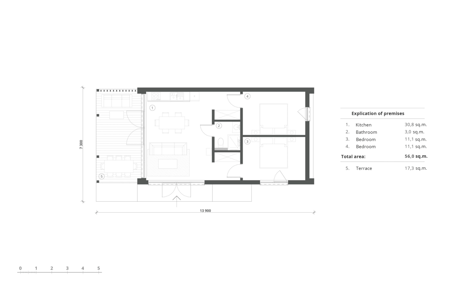
Compact house with 2 bedrooms, 1 bathroom and a common room. In the left part there is a living room, through which the main entrance to the house is made, and a kitchen with a dining table for 6 people.

Compact house made of SIP panels, 56 sq.m.

Inspection of the house

The total area of ​​the room is 31 sq.m., from which access to the terrace is 18 sq.m. On the right side are the bathroom – 3 square meters, wardrobes and bedrooms – 11 square meters each. A large number of windows creates the feeling that the outside area is an extension of the house. It can be a full-fledged house for permanent residence, as well as a house for country recreation.

Inspection of the house