A house made of SIP panels, 147 sq.m.

A two-story house among pine trees with a total area of ​​147 m2. The compact layout includes a sleeping area with three bedrooms and a bathroom on the second floor. It provides silence and privacy.

A house made of SIP panels, 147 sq.m.

Inspection of the house

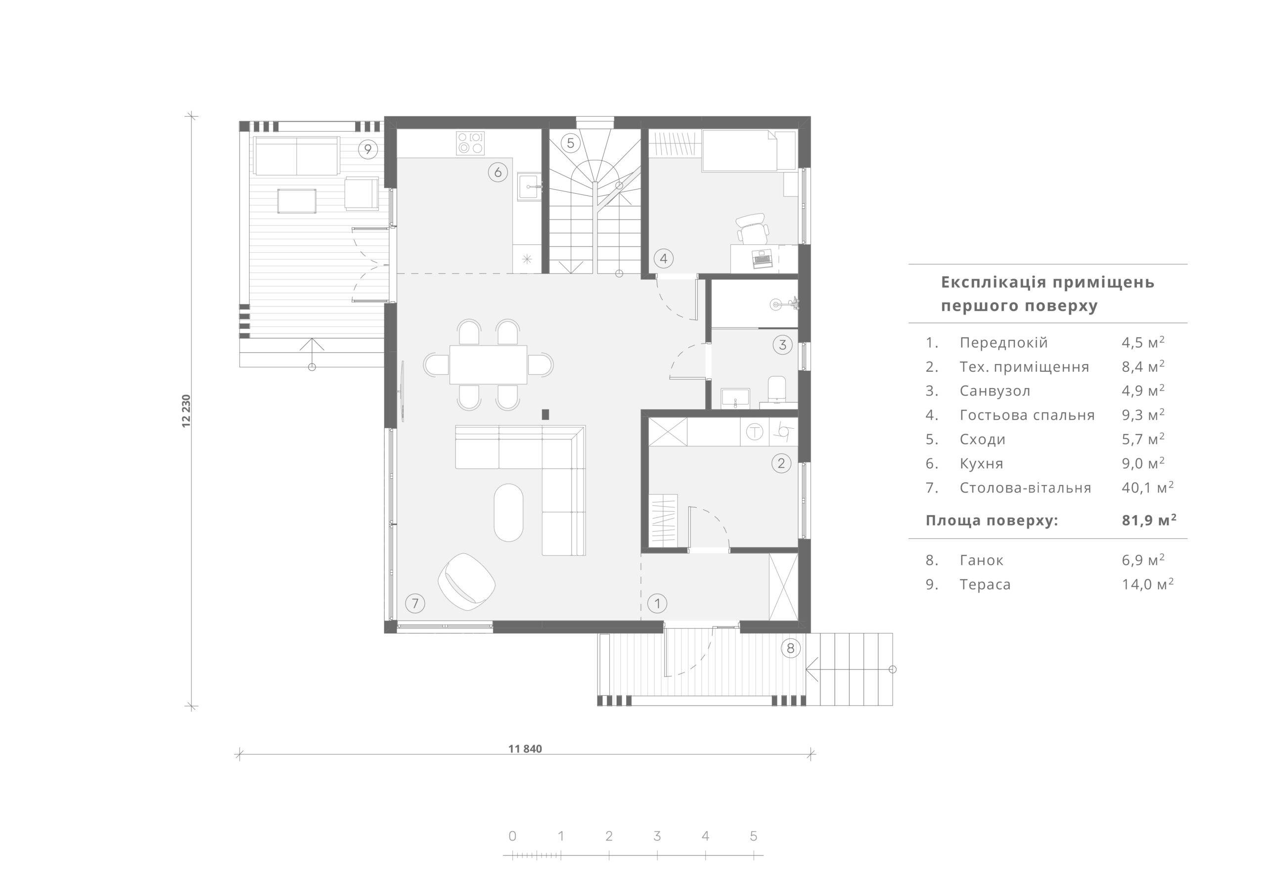
From the corridor there is an entrance to the attic. On the first floor there is a guest bedroom/office, a technical room and a guest bathroom. An open kitchen-living room with a second light and large windows on the first floor gives the feeling of a large bright space. From the kitchen there is access to a small covered terrace, where you can comfortably have breakfast or drink tea with a view of the pine trees.

Inspection of the house